Кухня Mozart
дизайнер | Егорова Евгения
локация | Москва, Россия
площадь | 12,5кв.м.
год | 2022
программы | 3dsMax + Corona Renderer, Photoshop, ArchiCAD
основные задачи | исходное пространство | концепция | дизайн

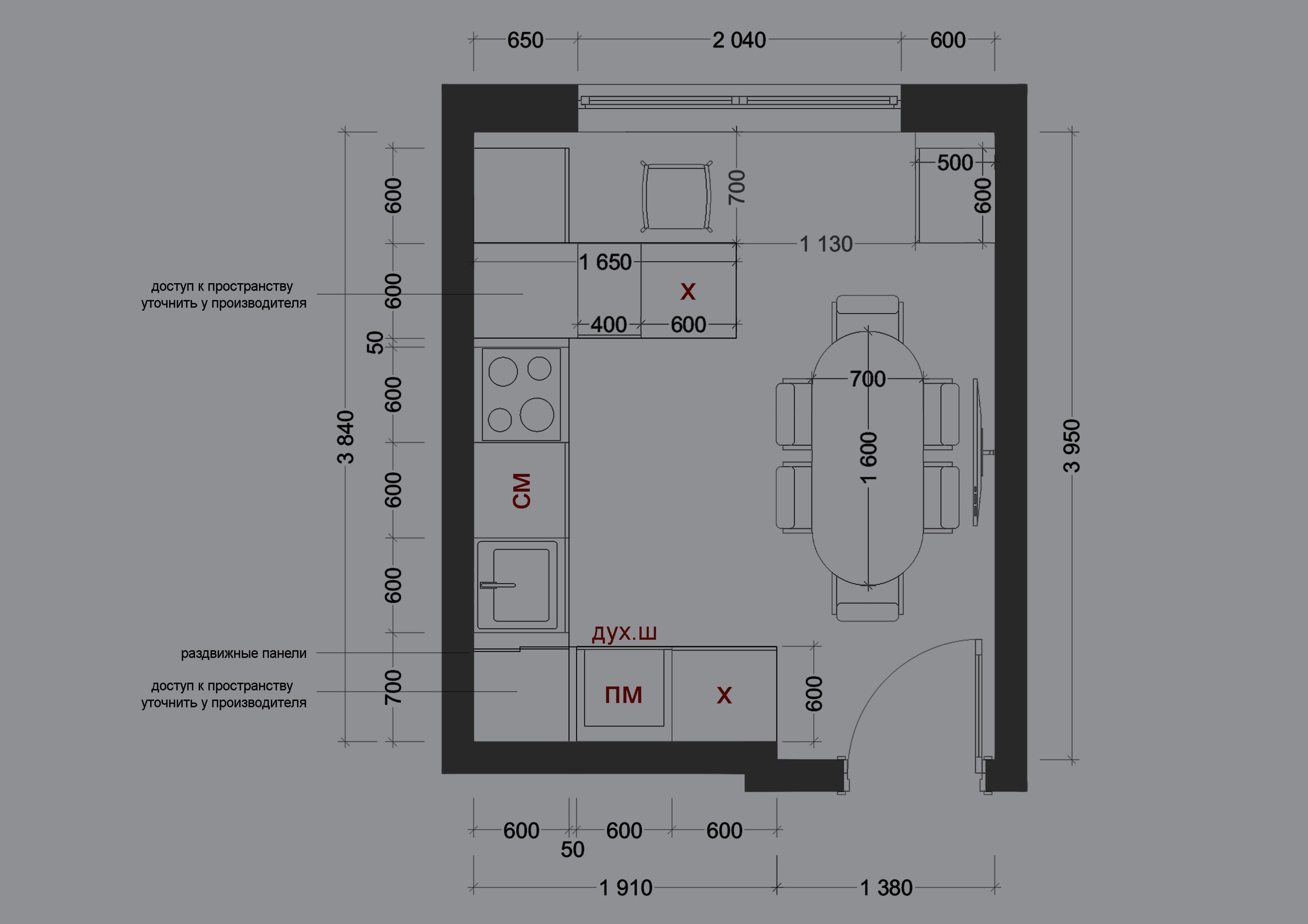
Основные задачи
Зонирование:
1. Встроенный холодильник
2. Винный шкаф
3. Барная стойка
4. Посудомойка
5. Места хранения
площадь: 12,5 м2
Исходное пространство





Концепция
СТИЛЬ
современный минимализм. Монохромная цветовая гамма мебели на фоне тёпло-серых стен с гладкой поверхностью, выраженная фактура светлого дерева и глянцевый камень в оформлении. Сдержанная цветовая гамма и натуральные материалы подчеркивают уют и современность помещения.




Дизайн











2022г









