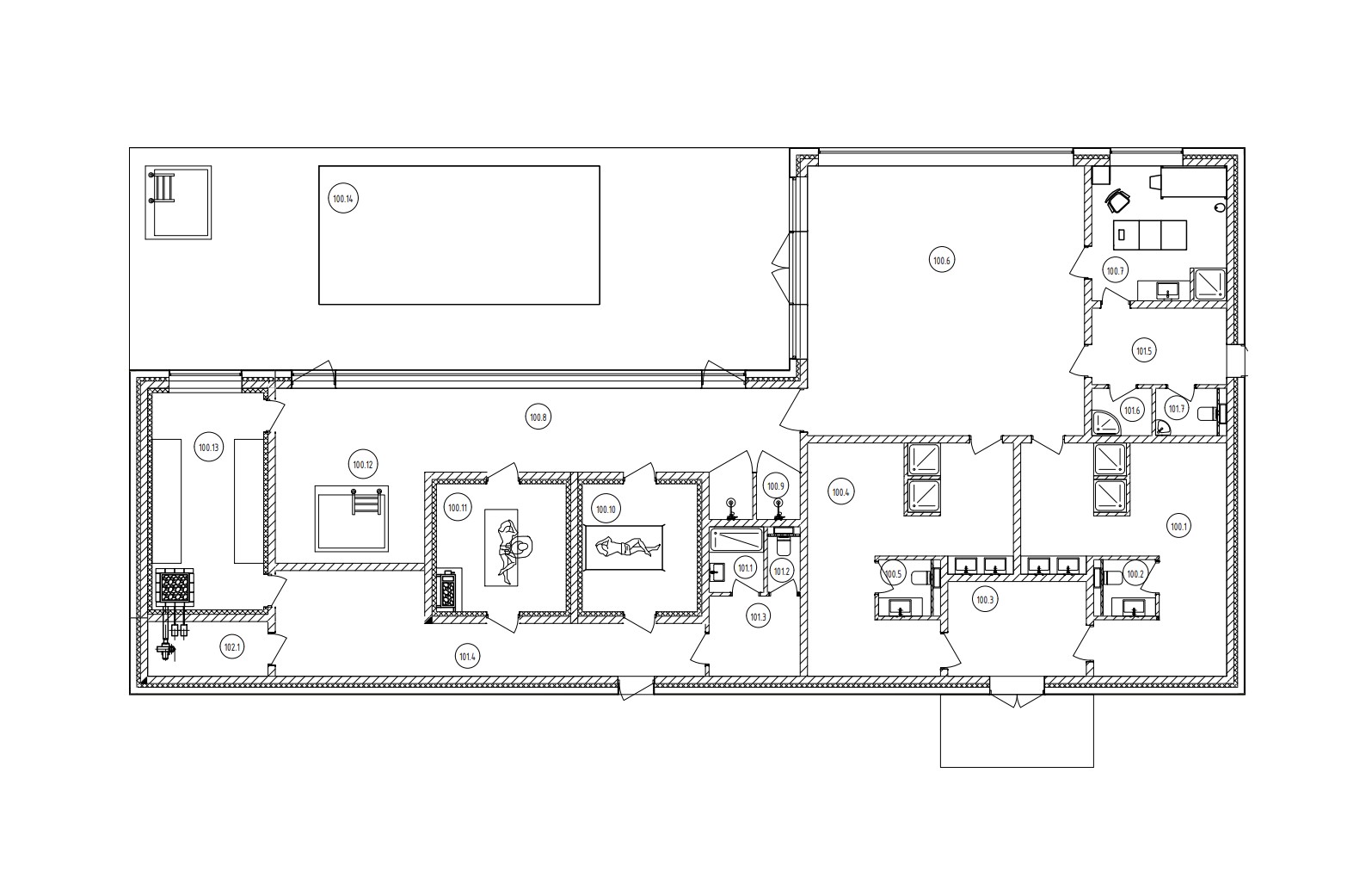
Визуализация банного комплекса (VIP)
Тамбур + ресепшен




Раздевалка + душевая








Общая комната отдыха








Душевая + купель







Парилка общая



Комната для индивидуального парения



Сенная комната отдыха



Санузел



СПА







Визуализация банного комплекса (VIP)
Тамбур + ресепшен
Раздевалка + душевая
Общая комната отдыха
Душевая + купель
Парилка общая
Комната для индивидуального парения
Сенная комната отдыха
Санузел
СПА