ЖК Римский - дизайн интерьера

3D

Рекомендуем

ЖК Римский - дизайн интерьера — Изображение №1 — Иллюстрация, 3D на Dprofile



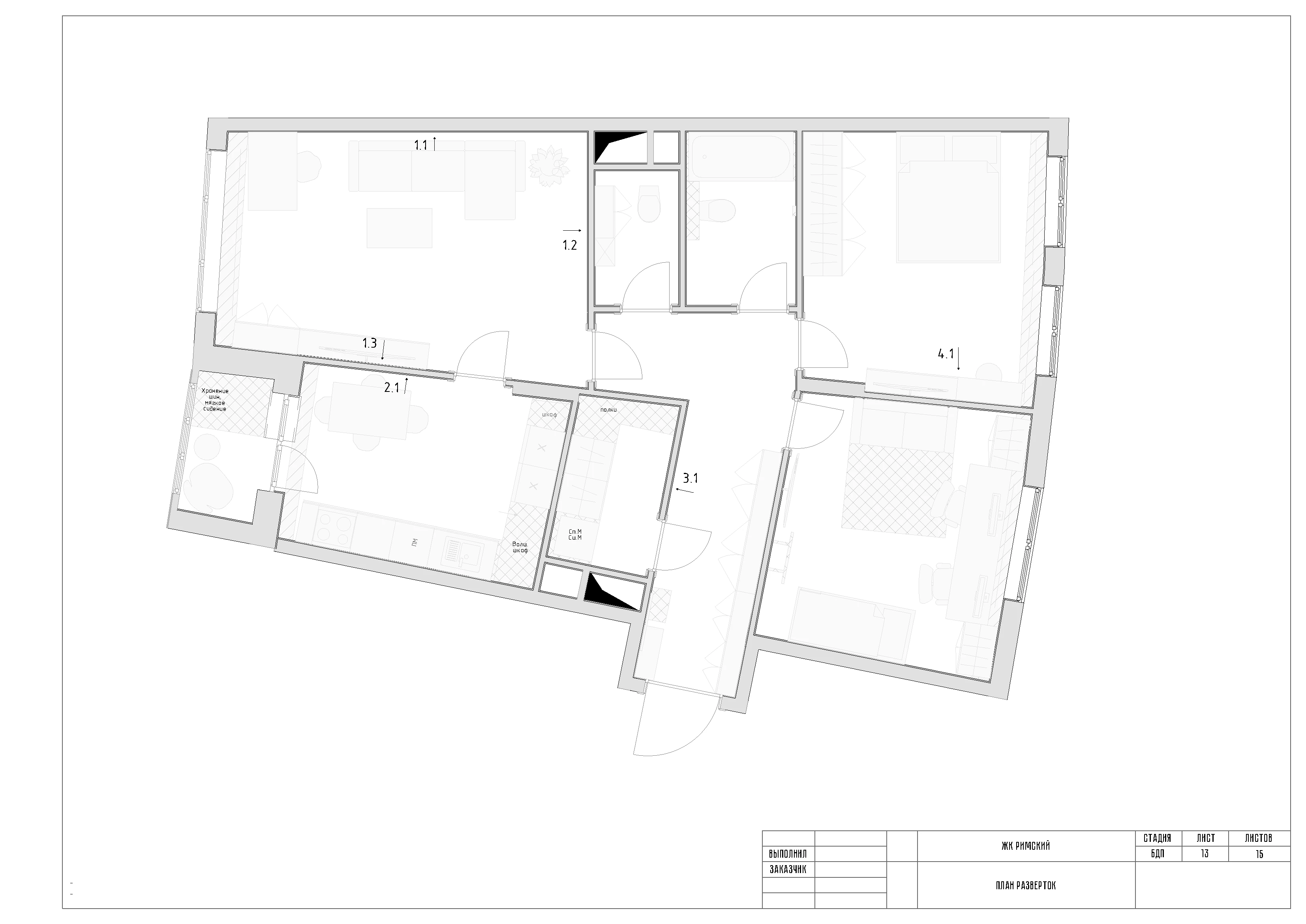
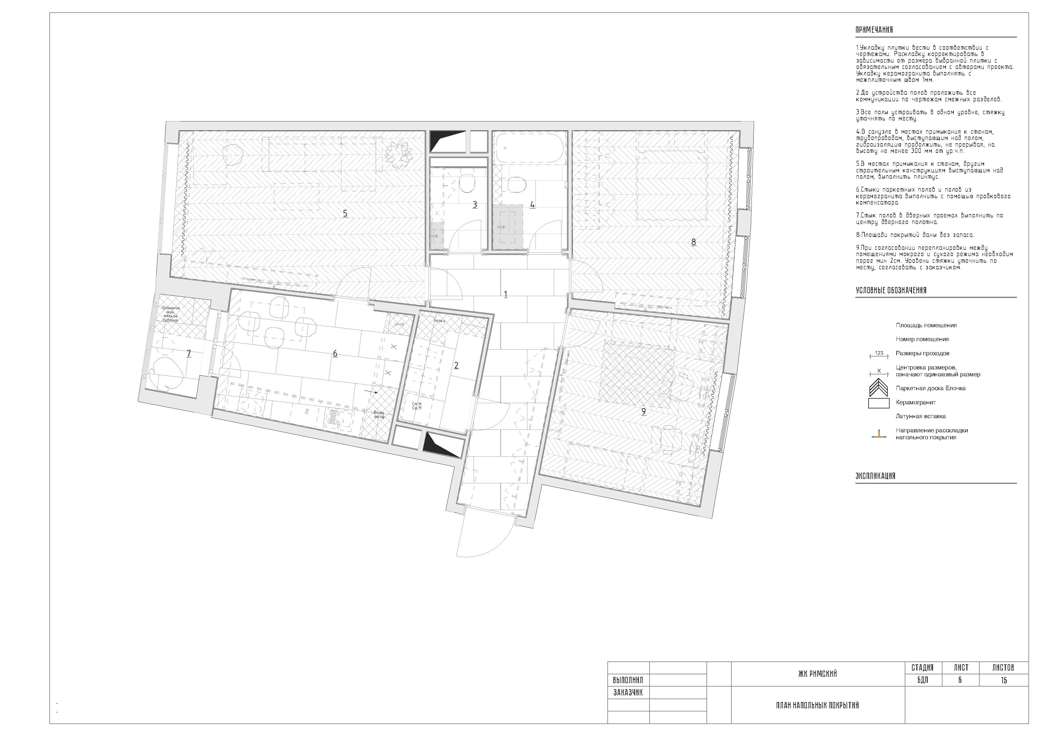
Проект квартиры 85 квм

Задача: сделать не дорого и красиво


В квартире использовано максимум пространства, сложная форма не стала проблемой. Стилистический акцент сделан на гостиную, как на основное пространства квартиры. Дизайн спроектирован лаконично и с комфортом для жителей квартиры.

85 sqm apartment project

Task: to do not expensive and beautiful


The apartment used maximum space, the complex shape did not become a problem. Stylistic emphasis is made on the living room, as the main space of the apartment. The design is designed concisely and with comfort for the residents of the apartment.

ЖК Римский - дизайн интерьера — Изображение №2 — Иллюстрация, 3D на Dprofile
ЖК Римский - дизайн интерьера — Изображение №3 — Иллюстрация, 3D на Dprofile
ЖК Римский - дизайн интерьера — Изображение №4 — Иллюстрация, 3D на Dprofile
ЖК Римский - дизайн интерьера — Изображение №5 — Иллюстрация, 3D на Dprofile
ЖК Римский - дизайн интерьера — Изображение №6 — Иллюстрация, 3D на Dprofile
ЖК Римский - дизайн интерьера — Изображение №7 — Иллюстрация, 3D на Dprofile
ЖК Римский - дизайн интерьера — Изображение №8 — Иллюстрация, 3D на Dprofile
ЖК Римский - дизайн интерьера — Изображение №9 — Иллюстрация, 3D на Dprofile
ЖК Римский - дизайн интерьера — Изображение №10 — Иллюстрация, 3D на Dprofile
ЖК Римский - дизайн интерьера — Изображение №11 — Иллюстрация, 3D на Dprofile
ЖК Римский - дизайн интерьера — Изображение №12 — Иллюстрация, 3D на Dprofile
ЖК Римский - дизайн интерьера — Изображение №13 — Иллюстрация, 3D на Dprofile
ЖК Римский - дизайн интерьера — Изображение №14 — Иллюстрация, 3D на Dprofile
ЖК Римский - дизайн интерьера — Изображение №15 — Иллюстрация, 3D на Dprofile
ЖК Римский - дизайн интерьера — Изображение №16 — Иллюстрация, 3D на Dprofile
ЖК Римский - дизайн интерьера — Изображение №17 — Иллюстрация, 3D на Dprofile
ЖК Римский - дизайн интерьера — Изображение №18 — Иллюстрация, 3D на Dprofile
ЖК Римский - дизайн интерьера — Изображение №19 — Иллюстрация, 3D на Dprofile
ЖК Римский - дизайн интерьера — Изображение №20 — Иллюстрация, 3D на Dprofile
ЖК Римский - дизайн интерьера — Изображение №21 — Иллюстрация, 3D на Dprofile
ЖК Римский - дизайн интерьера — Изображение №22 — Иллюстрация, 3D на Dprofile
ЖК Римский - дизайн интерьера — Изображение №23 — Иллюстрация, 3D на Dprofile
ЖК Римский - дизайн интерьера — Изображение №24 — Иллюстрация, 3D на Dprofile
ЖК Римский - дизайн интерьера — Изображение №25 — Иллюстрация, 3D на Dprofile
ЖК Римский - дизайн интерьера — Изображение №26 — Иллюстрация, 3D на Dprofile
ЖК Римский - дизайн интерьера — Изображение №27 — Иллюстрация, 3D на Dprofile
ЖК Римский - дизайн интерьера — Изображение №28 — Иллюстрация, 3D на Dprofile
ЖК Римский - дизайн интерьера — Изображение №29 — Иллюстрация, 3D на Dprofile
ЖК Римский - дизайн интерьера — Изображение №30 — Иллюстрация, 3D на Dprofile
ЖК Римский - дизайн интерьера — Изображение №31 — Иллюстрация, 3D на Dprofile
ЖК Римский - дизайн интерьера — Изображение №32 — Иллюстрация, 3D на Dprofile
ЖК Римский - дизайн интерьера — Изображение №33 — Иллюстрация, 3D на Dprofile
ЖК Римский - дизайн интерьера — Изображение №34 — Иллюстрация, 3D на Dprofile
ЖК Римский - дизайн интерьера — Изображение №35 — Иллюстрация, 3D на Dprofile
ЖК Римский - дизайн интерьера — Изображение №36 — Иллюстрация, 3D на Dprofile
ЖК Римский - дизайн интерьера — Изображение №37 — Иллюстрация, 3D на Dprofile
ЖК Римский - дизайн интерьера — Изображение №38 — Иллюстрация, 3D на Dprofile
ЖК Римский - дизайн интерьера — Изображение №39 — Иллюстрация, 3D на Dprofile
ЖК Римский - дизайн интерьера — Изображение №40 — Иллюстрация, 3D на Dprofile
ЖК Римский - дизайн интерьера — Изображение №41 — Иллюстрация, 3D на Dprofile
ЖК Римский - дизайн интерьера — Изображение №42 — Иллюстрация, 3D на Dprofile
ЖК Римский - дизайн интерьера — Изображение №43 — Иллюстрация, 3D на Dprofile
ЖК Римский - дизайн интерьера — Изображение №44 — Иллюстрация, 3D на Dprofile
ЖК Римский - дизайн интерьера — Изображение №45 — Иллюстрация, 3D на Dprofile



Ароян Сусанна

Фафонкин Мирон


Контакты:

Ароян Сусанна: +7 (920) 202 28 54

Фафонкин Мирон:  https://t.me/fafonkin


Contacts:

Aroyan Susanna: +7 (920) 202 28 54

Fafonkin Miron: https://t.me/fafonkin

Сделано за 21 день

Оценить

Добавить в коллекции...

От автора