Лётка | Многофункциональный парк

Лётка | Многофункциональный парк — Изображение №1 — Архитектура на Dprofile

Многофункциональный парк "Лётка"


Расположение:   Город Энгельс, Саратовская область, Россия

Категория:            Парковые территории - конкурсный проект

Площадь:             560 000 кв. м

Год:                        2025


Разработка паркового комплекса в лётном городке – важная задача правительства Саратовской области. Сегодня территория заброшена, и память о прошлом Энгельса-1, уникального закрытого авиагородка, постепенно исчезает. Жители хотят вернуть ему жизнь, а общественные активисты предлагают идеи для развития.

К сожалению, большинство зданий находятся в аварийном состоянии, и в этом году их снесли. На их месте мы создаём Лётку – самый большой парк в городе. Он станет территорией для всех.

Лётка | Многофункциональный парк — Изображение №2 — Архитектура на Dprofile

Лётный городок в Энгельсе — это военный аэродром и база дальней авиации, которая играет важную роль в защите воздушного пространства России. История аэродрома начинается в 1931 году, когда было принято решение о его строительстве. В годы Великой Отечественной войны он стал важным стратегическим объектом.
В послевоенный период аэродром активно развивался, что позволило дальней авиации стать одной из самых мощных в мире. Сегодня лётный городок в Энгельсе продолжает играть важную роль в обеспечении безопасности России, а также является центром подготовки лётного состава.

Лётка | Многофункциональный парк — Изображение №3 — Архитектура на Dprofile

Расположение: Саратовская область, г. Энгельс, Летный городок.
Земельные участки: в границах кадастровых кварталов 64:50:020931, 64:50:020932, 64:50:020935, освободившиеся от застройки ветхими, аварийными домами
Численность населения г. Энгельс: 222 685 чел. (2021)

Ограничения: 
1. Охранная зона объекта культурного наследия регионального значения «Дом офицеров Красной Армии» (Саратовская область, г. Энгельс, мкр. Энгельс-1, з/у 15б)
2. Охранная зона инженерных сетей.

Лётка | Многофункциональный парк — Изображение №4 — Архитектура на Dprofile
Лётка | Многофункциональный парк — Изображение №5 — Архитектура на Dprofile
Лётка | Многофункциональный парк — Изображение №6 — Архитектура на Dprofile

Главная идея парка – возродить историю городка, показать, чем жили работники авиабазы и студенты лётного училища, рассказать о подвигах людей, которые здесь жили. Мы сохранили памятники, улицы и фундаменты снесённых зданий, чтобы создать мощное мемориальное пространство.

Лётка | Многофункциональный парк — Изображение №7 — Архитектура на Dprofile
Лётка | Многофункциональный парк — Изображение №8 — Архитектура на Dprofile
Лётка | Многофункциональный парк — Изображение №9 — Архитектура на Dprofile
Лётка | Многофункциональный парк — Изображение №10 — Архитектура на Dprofile
Лётка | Многофункциональный парк — Изображение №11 — Архитектура на Dprofile
Лётка | Многофункциональный парк — Изображение №12 — Архитектура на Dprofile
Лётка | Многофункциональный парк — Изображение №13 — Архитектура на Dprofile
Лётка | Многофункциональный парк — Изображение №14 — Архитектура на Dprofile
Лётка | Многофункциональный парк — Изображение №15 — Архитектура на Dprofile

Мы также уделили внимание природе: линейное многолетнее озеленение, кронирование деревьев и посадка новых растений. Объединение с церковью в посадке 67 берёз в память о 67 погибших лётчиках – часть нового зелёного каркаса парка.

Лётка | Многофункциональный парк — Изображение №16 — Архитектура на Dprofile
Лётка | Многофункциональный парк — Изображение №17 — Архитектура на Dprofile
Лётка | Многофункциональный парк — Изображение №18 — Архитектура на Dprofile
Лётка | Многофункциональный парк — Изображение №19 — Архитектура на Dprofile
Лётка | Многофункциональный парк — Изображение №20 — Архитектура на Dprofile
Лётка | Многофункциональный парк — Изображение №21 — Архитектура на Dprofile
Лётка | Многофункциональный парк — Изображение №22 — Архитектура на Dprofile

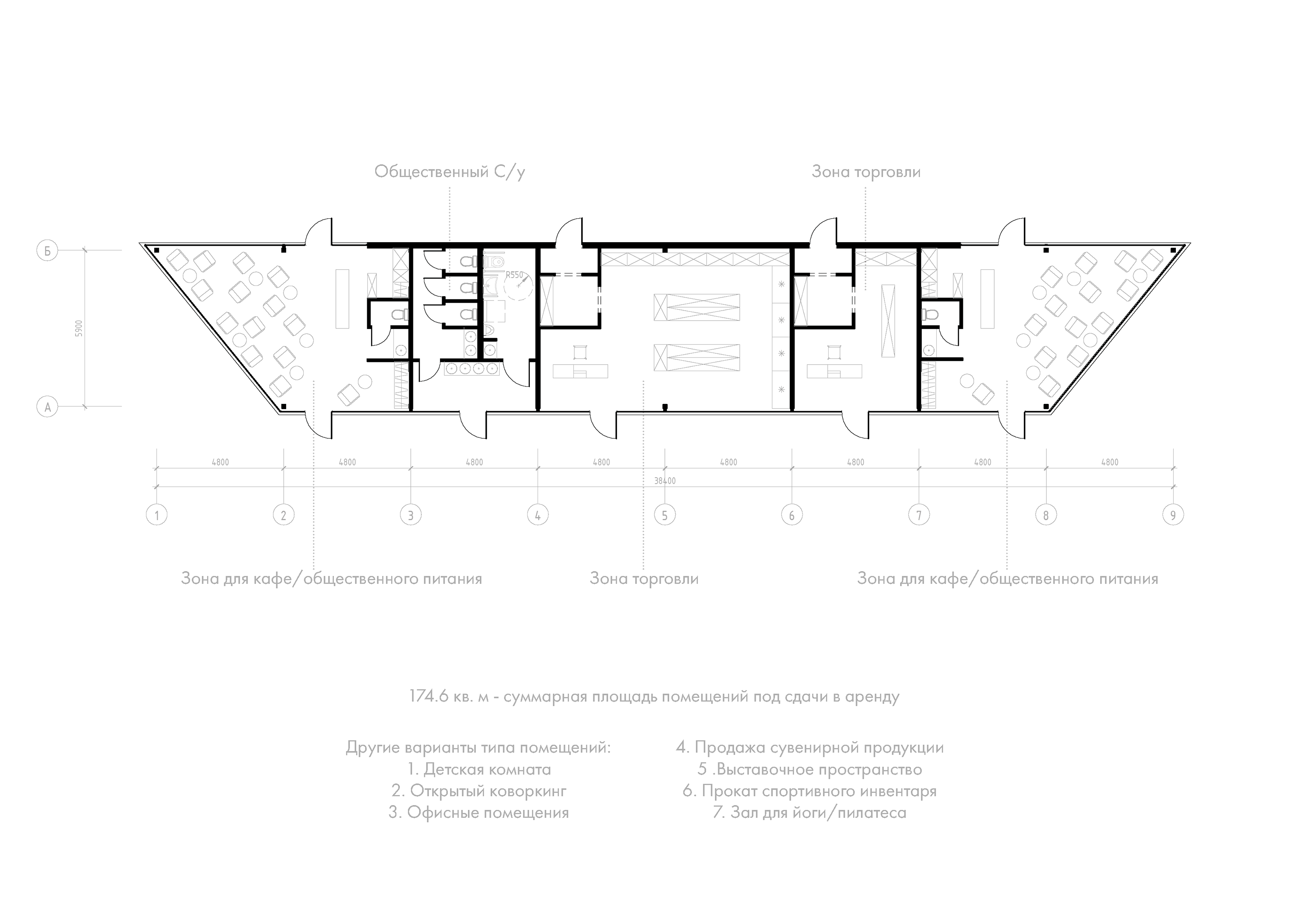
Проект полон отсылок к авиации, что делает парк энциклопедией под открытым небом. Прогулочные дорожки напоминают пульс, проходящий через снесённые здания. В парке есть площади, природные амфитеатры, кинотеатры, стадионы и типовые павильоны с санузлами и площадками для аренды.

Лётка | Многофункциональный парк — Изображение №23 — Архитектура на Dprofile
Лётка | Многофункциональный парк — Изображение №24 — Архитектура на Dprofile
Лётка | Многофункциональный парк — Изображение №25 — Архитектура на Dprofile
Лётка | Многофункциональный парк — Изображение №26 — Архитектура на Dprofile
Лётка | Многофункциональный парк — Изображение №27 — Архитектура на Dprofile

Оценить

Добавить в коллекции...

От автора