Отрисовка чертежей для жилого комплекса

Отрисовка поэтажных планов и планировок в фирменном стиле

в соответствии с чертежами жилого комплекса.



Отрисовка чертежей для жилого комплекса — Изображение №1 — Брендинг, Графика на Dprofile

Общий план комплекса:

Отрисовка чертежей для жилого комплекса — Изображение №2 — Брендинг, Графика на Dprofile
Отрисовка чертежей для жилого комплекса — Изображение №3 — Брендинг, Графика на Dprofile

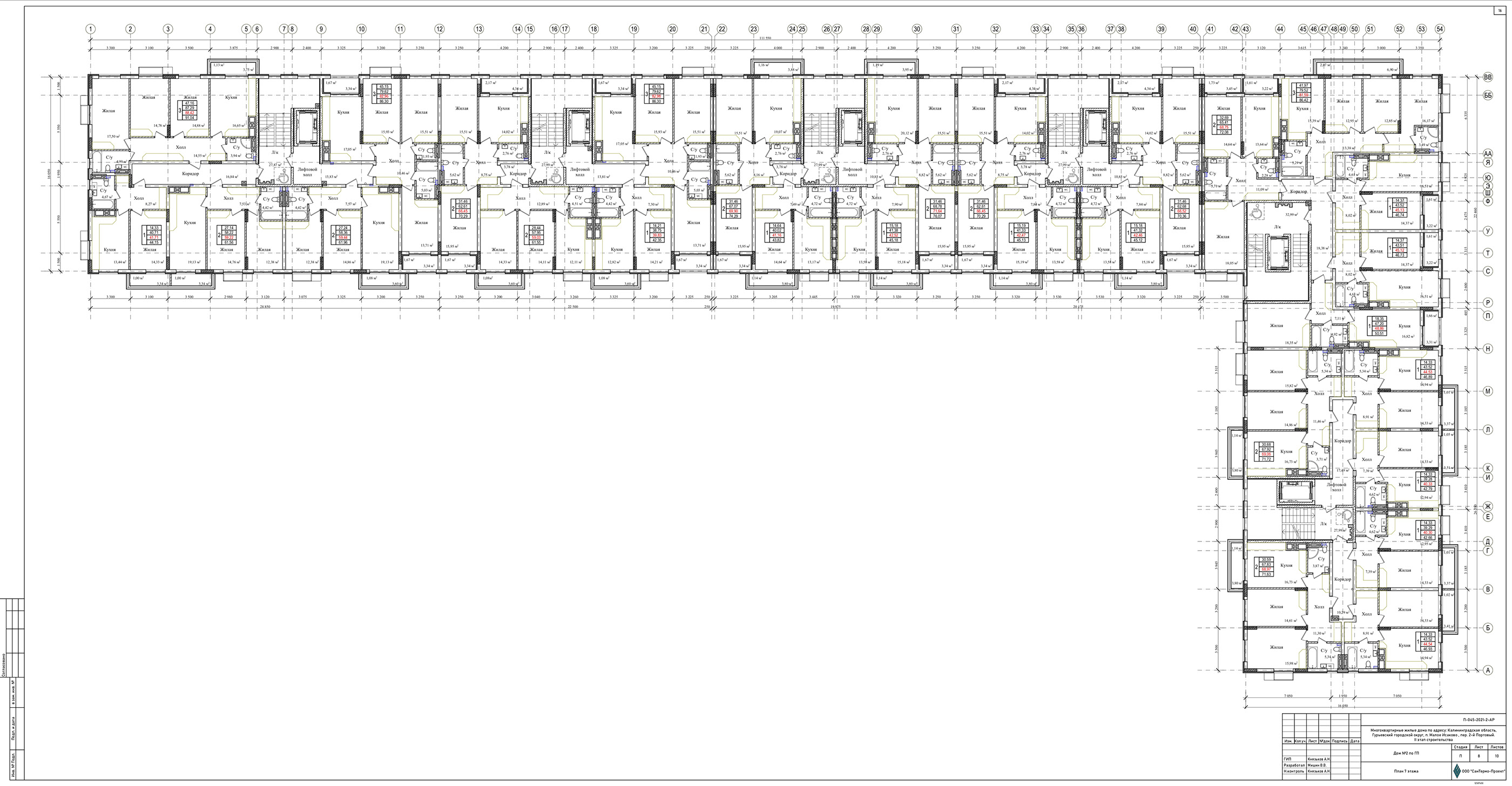
Дом №1:

Отрисовка чертежей для жилого комплекса — Изображение №4 — Брендинг, Графика на Dprofile
Отрисовка чертежей для жилого комплекса — Изображение №5 — Брендинг, Графика на Dprofile
Отрисовка чертежей для жилого комплекса — Изображение №6 — Брендинг, Графика на Dprofile
Отрисовка чертежей для жилого комплекса — Изображение №7 — Брендинг, Графика на Dprofile
Отрисовка чертежей для жилого комплекса — Изображение №8 — Брендинг, Графика на Dprofile
Отрисовка чертежей для жилого комплекса — Изображение №9 — Брендинг, Графика на Dprofile

Дом №2:

Отрисовка чертежей для жилого комплекса — Изображение №10 — Брендинг, Графика на Dprofile
Отрисовка чертежей для жилого комплекса — Изображение №11 — Брендинг, Графика на Dprofile
Отрисовка чертежей для жилого комплекса — Изображение №12 — Брендинг, Графика на Dprofile
Отрисовка чертежей для жилого комплекса — Изображение №13 — Брендинг, Графика на Dprofile
Отрисовка чертежей для жилого комплекса — Изображение №14 — Брендинг, Графика на Dprofile
Отрисовка чертежей для жилого комплекса — Изображение №15 — Брендинг, Графика на Dprofile

Дом №3:

Отрисовка чертежей для жилого комплекса — Изображение №16 — Брендинг, Графика на Dprofile
Отрисовка чертежей для жилого комплекса — Изображение №17 — Брендинг, Графика на Dprofile
Отрисовка чертежей для жилого комплекса — Изображение №18 — Брендинг, Графика на Dprofile
Отрисовка чертежей для жилого комплекса — Изображение №19 — Брендинг, Графика на Dprofile
Отрисовка чертежей для жилого комплекса — Изображение №20 — Брендинг, Графика на Dprofile
Отрисовка чертежей для жилого комплекса — Изображение №21 — Брендинг, Графика на Dprofile
Отрисовка чертежей для жилого комплекса — Изображение №22 — Брендинг, Графика на Dprofile
Отрисовка чертежей для жилого комплекса — Изображение №23 — Брендинг, Графика на Dprofile

Дом №4:

Отрисовка чертежей для жилого комплекса — Изображение №24 — Брендинг, Графика на Dprofile
Отрисовка чертежей для жилого комплекса — Изображение №25 — Брендинг, Графика на Dprofile
Отрисовка чертежей для жилого комплекса — Изображение №26 — Брендинг, Графика на Dprofile
Отрисовка чертежей для жилого комплекса — Изображение №27 — Брендинг, Графика на Dprofile
Отрисовка чертежей для жилого комплекса — Изображение №28 — Брендинг, Графика на Dprofile

Планировки:

Отрисовка чертежей для жилого комплекса — Изображение №29 — Брендинг, Графика на Dprofile
Отрисовка чертежей для жилого комплекса — Изображение №30 — Брендинг, Графика на Dprofile
Отрисовка чертежей для жилого комплекса — Изображение №31 — Брендинг, Графика на Dprofile
Отрисовка чертежей для жилого комплекса — Изображение №32 — Брендинг, Графика на Dprofile
Отрисовка чертежей для жилого комплекса — Изображение №33 — Брендинг, Графика на Dprofile

Оценить

Добавить в коллекции...

От автора