Дизайн проект 2 х. комн. квартиры

Дизайн проект 2 комн. кв (без кухни) для семьи из двух человек.

г. Москва 2015 год

Гостиная 18 м.кв

Дизайн проект 2 х. комн. квартиры — Изображение №1 — 3D на Dprofile
Дизайн проект 2 х. комн. квартиры — Изображение №2 — 3D на Dprofile
Дизайн проект 2 х. комн. квартиры — Изображение №3 — 3D на Dprofile
Дизайн проект 2 х. комн. квартиры — Изображение №4 — 3D на Dprofile
Дизайн проект 2 х. комн. квартиры — Изображение №5 — 3D на Dprofile

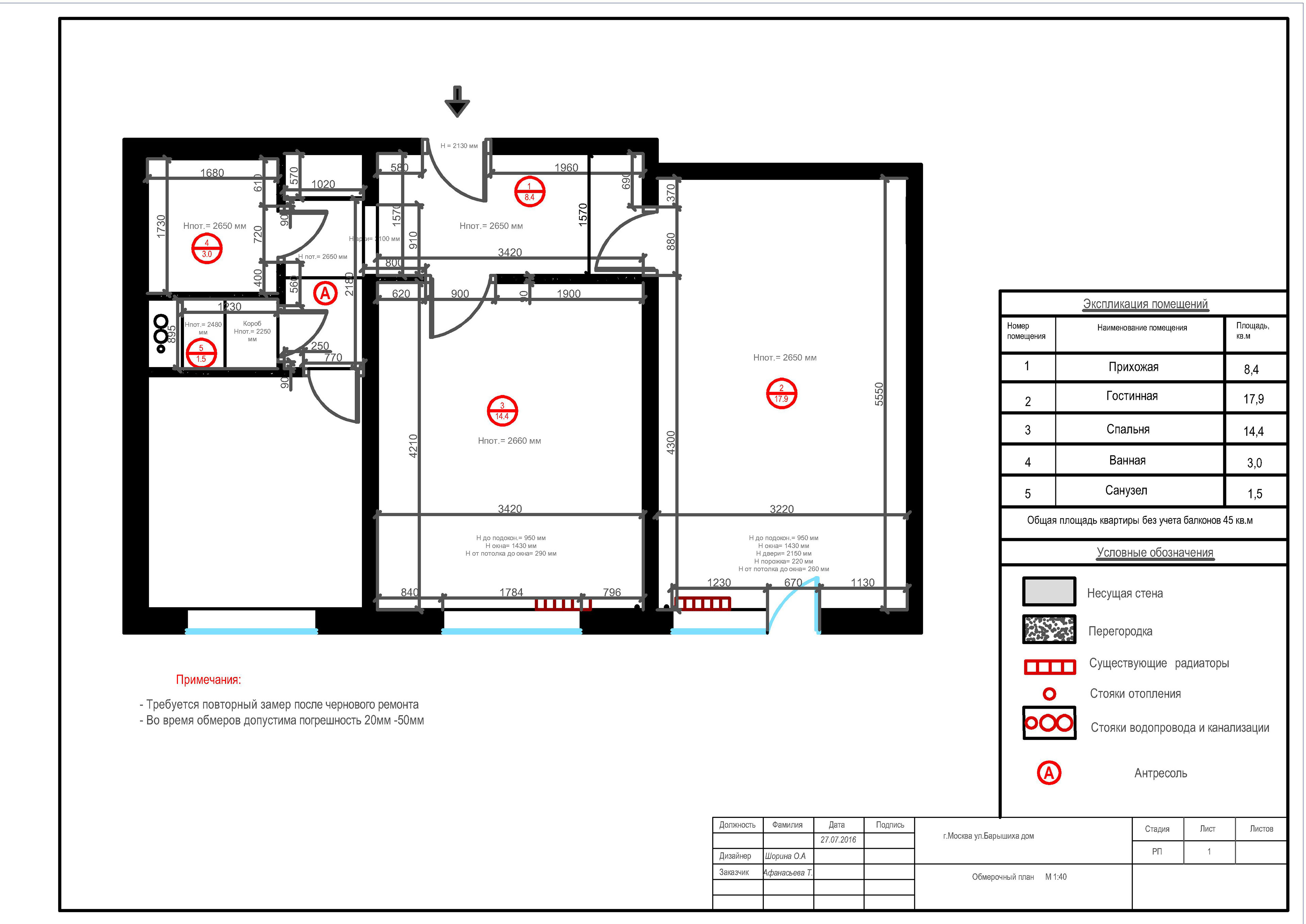
Обмерочный план расстановка мебели квартира 45 м.кв.

Дизайн проект 2 х. комн. квартиры — Изображение №6 — 3D на Dprofile
Дизайн проект 2 х. комн. квартиры — Изображение №7 — 3D на Dprofile

Предварительные коллажи и цветовой набор под существующую кухню

Дизайн проект 2 х. комн. квартиры — Изображение №8 — 3D на Dprofile
Дизайн проект 2 х. комн. квартиры — Изображение №9 — 3D на Dprofile
Дизайн проект 2 х. комн. квартиры — Изображение №10 — 3D на Dprofile
Дизайн проект 2 х. комн. квартиры — Изображение №11 — 3D на Dprofile
Дизайн проект 2 х. комн. квартиры — Изображение №12 — 3D на Dprofile
Дизайн проект 2 х. комн. квартиры — Изображение №13 — 3D на Dprofile

Спальня 14,5 м.кв

Дизайн проект 2 х. комн. квартиры — Изображение №14 — 3D на Dprofile
Дизайн проект 2 х. комн. квартиры — Изображение №15 — 3D на Dprofile
Дизайн проект 2 х. комн. квартиры — Изображение №16 — 3D на Dprofile
Дизайн проект 2 х. комн. квартиры — Изображение №17 — 3D на Dprofile

Прихожая 9 м.кв

Дизайн проект 2 х. комн. квартиры — Изображение №18 — 3D на Dprofile
Дизайн проект 2 х. комн. квартиры — Изображение №19 — 3D на Dprofile
Дизайн проект 2 х. комн. квартиры — Изображение №20 — 3D на Dprofile

Санузел 3 м.кв

Дизайн проект 2 х. комн. квартиры — Изображение №21 — 3D на Dprofile
Дизайн проект 2 х. комн. квартиры — Изображение №22 — 3D на Dprofile
Дизайн проект 2 х. комн. квартиры — Изображение №23 — 3D на Dprofile
Дизайн проект 2 х. комн. квартиры — Изображение №24 — 3D на Dprofile
Дизайн проект 2 х. комн. квартиры — Изображение №25 — 3D на Dprofile

Оценить

Добавить в коллекции...

От автора