Пространство «ВАЙТ НОЙЗ» объединяет звуковые и визуальные практики — музыку, саунд-дизайн, видео и медиаискусство — в одном пространстве. Это не просто студия, а живая лаборатория, где можно создавать, показывать и обучаться




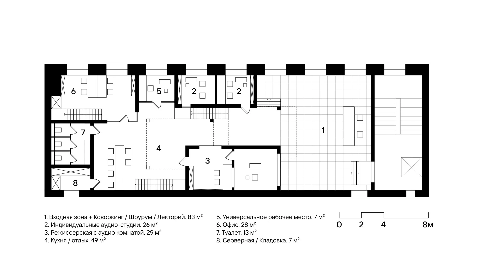
Что это: Аудиовизуальная мастерская / лаборатория медиаискусств / креативный хаб. Это гибридное пространство, объединяющее: студии звукозаписи и саунд-дизайна; медиа-студию для видео, VJ и интерактивных инсталляций











В студии звукозаписи музыкант погружается в работу с синтезаторами и драм-машинами, экспериментируя с частотами, ритмами и звуковыми текстурами, а светодиодные панели вокруг него создают динамичную визуальную атмосферу, которая откликается на каждый звук.


























