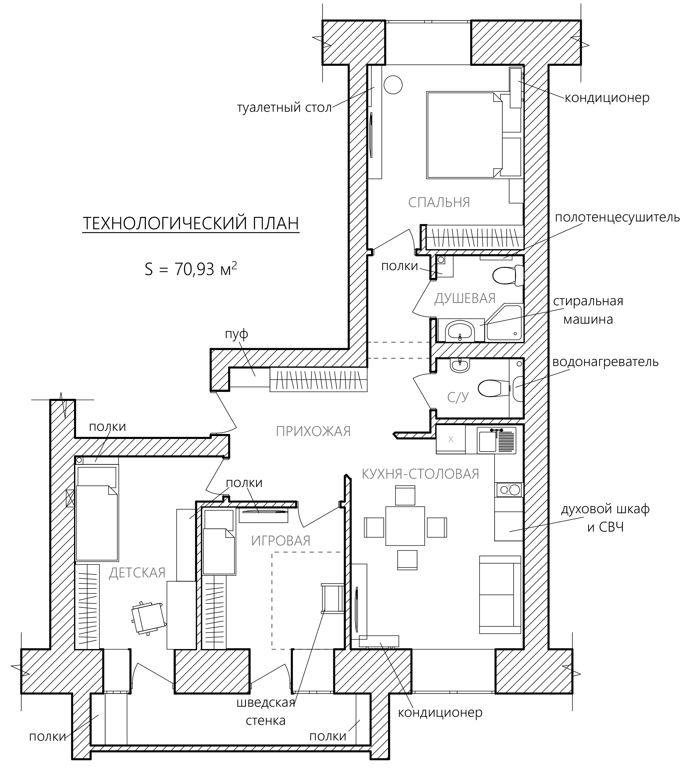
ВИЗУАЛИЗАЦИИ ДИЗАЙНА ИНТЕРЬЕРОВ ТРЁХКОМНАТНОЙ КВАРТИРЫ, 2021 год.
Лёгкая спальня в мягких тонах отличное место для отдыха души и тела. Чёткие линии подёркивают геометрию комнаты и визуально увеличивают высоту потолка, а тёплый свет и мягкие фактуры расслабляют, создавая уютную обстановку вдали от тревог повседневности.
Площадь комнаты 12,24 кв. м.




Комнаты для детей богаты цветом и фактурами. Индивидуальный подход к увлечениям каждого, даже самого маленького клиента, позволяют создать уникальный интерьер подходящий конкретному человеку.
Площадь комнаты 8,58 кв. м.



Площадь комнаты 10,41 кв. м.




Кухня-столовая с зоной отдыха, площадь комнаты 14,75 кв. м.



Дизайнер - визуализатор: Евгения Перминова
Программы: 3ds Max; Corona Render; Adobe Photoshop.
Год: 2021












