ВИЗУАЛИЗАЦИИ ДИЗАЙНА ИНТЕРЬЕРА КУХНИ-ГОСТИНОЙ, 2021 год.
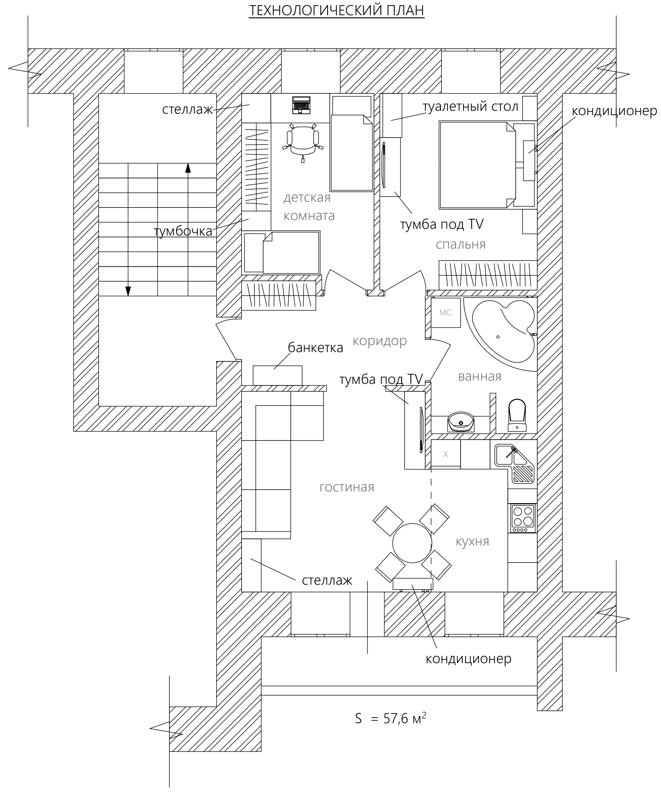
Общая площадь квартиры S = 57,6 кв. м.
Кухня-гостиная является самым значимым местом во всей квартире. Это многофункциональная комната, где происходят разные сценарии жизни семьи: от приёма пищи до активного отдыха и общения. Тёплые, естественные оттенки коричневого создают комфортную среду для отдыха. Зоны освещения помогут создать правильную атмосферу под любое настроение и мероприятие. А холодный синий успокоит и приземлит разум, разбавив яркостью цвета преемущественный монохром комнаты.
Площадь кухни-гостиной 22,2 кв. м.




Дизайнер - визуализатор: Евгения Перминова
Программы: 3ds Max; Corona Render; Adobe Photoshop
Год: 2021














