
Состав семьи: мужи жена - среднего возраста, основная работа мужа - фондовая биржа; жена бюджетный работник, увлекается разведением цветов; дочь и ее муж - студенты, часто приглашают друзей в гости.
Из требований: необходимо запроектировать 3 рабочих места с компьютерами, для отца - с изоляцией, т.к. работа на бирже предполагает ночные торги. Предпочитают "кантри" или "эко-стиль".
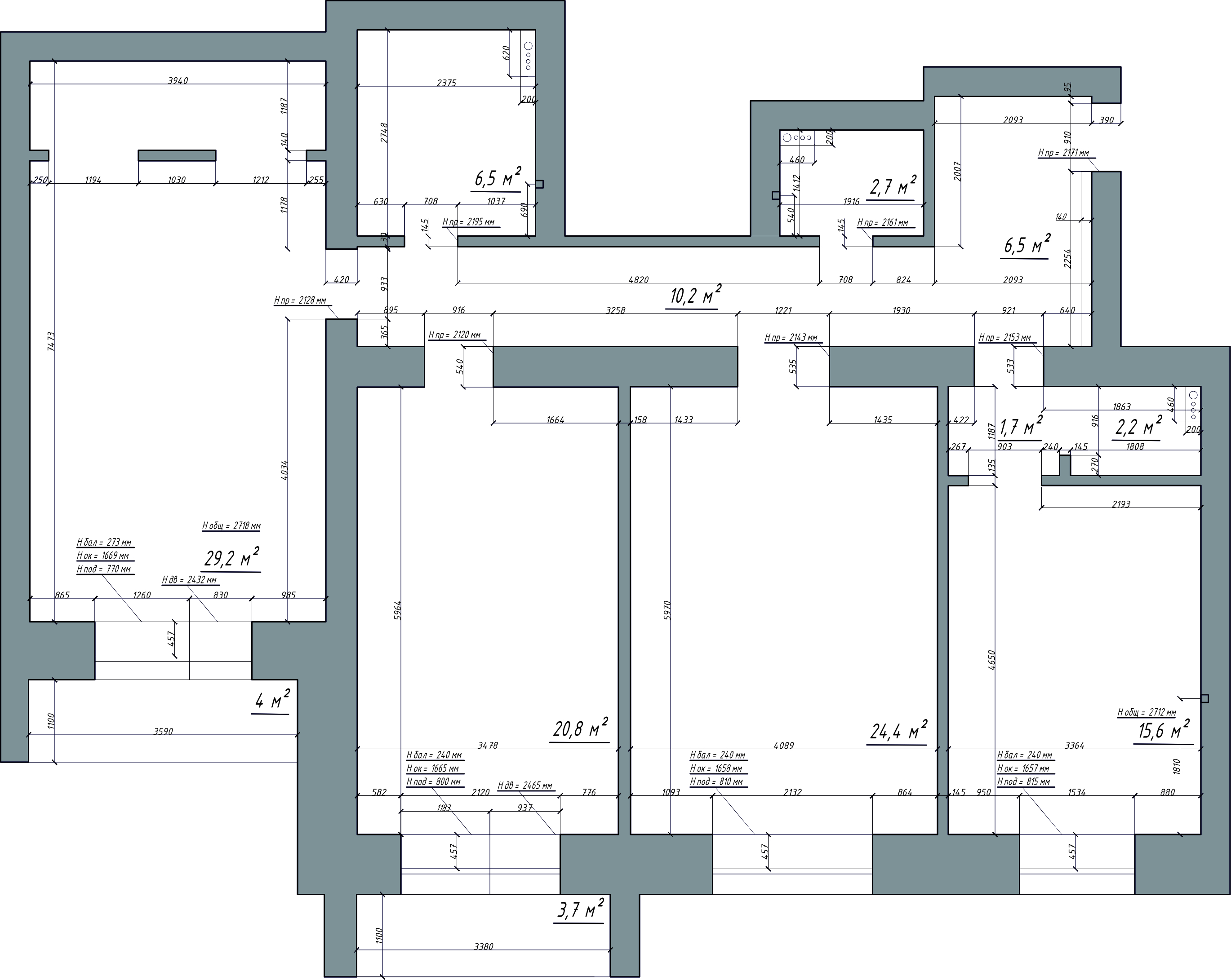
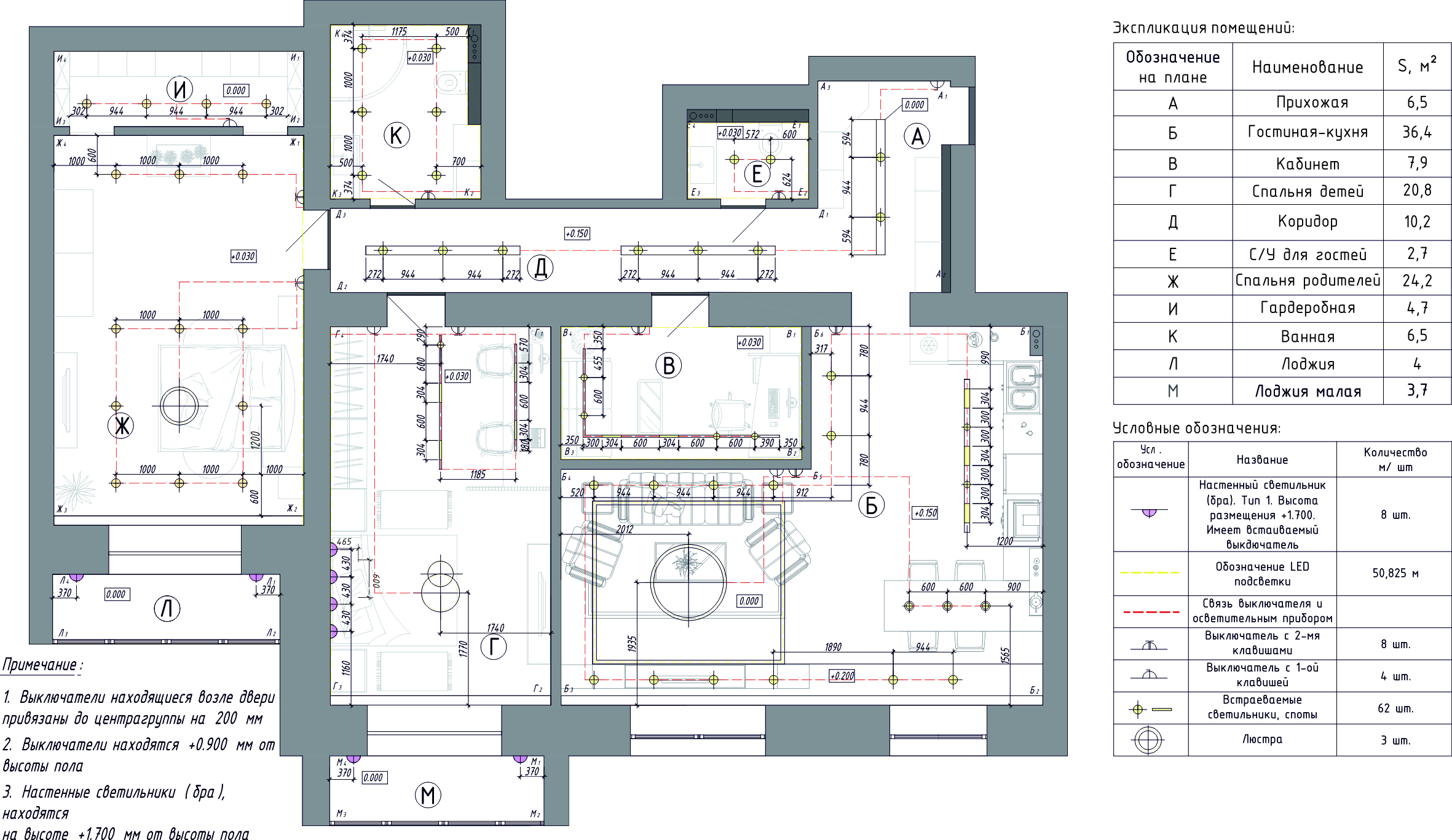
ПЛОЩАДЬ - 119,8 м²
2023 ГОД
ПЛАН КВАРТИРЫ
















ОБМЕРНЫЙ ПЛАН

ДЕМОНТАЖНЫЙ ПЛАН

МОНТАЖНЫЙ ПЛАН

ПЛАН С РАССТАНОВКОЙ МЕБЕЛИ

ПЛАН НАПОЛЬНЫХ ПОКРЫТИЙ

ПЛАН ПОТОЛКА

СХЕМА ОСВЕЩЕНИЯ

ПЛАН С РАССТАНОВКОЙ ЭЛЕКТРОУСТАНОВОЧНЫХ ПРИБОРОВ

РАЗВЕРТКИ ПОМЕЩЕНИЯ "К" - ВАННАЯ

РАЗВЕРТКИ ПОМЕЩЕНИЯ "Г" - СПАЛЬНЯ ДЕТЕЙ

РАЗВЕРТКИ ПОМЕЩЕНИЯ "Б" - ГОСТИНАЯ-КУХНЯ

ДЕТАЛЬ ПУФ-ОБУВНИЦА В ПРИХОЖЕЙ










