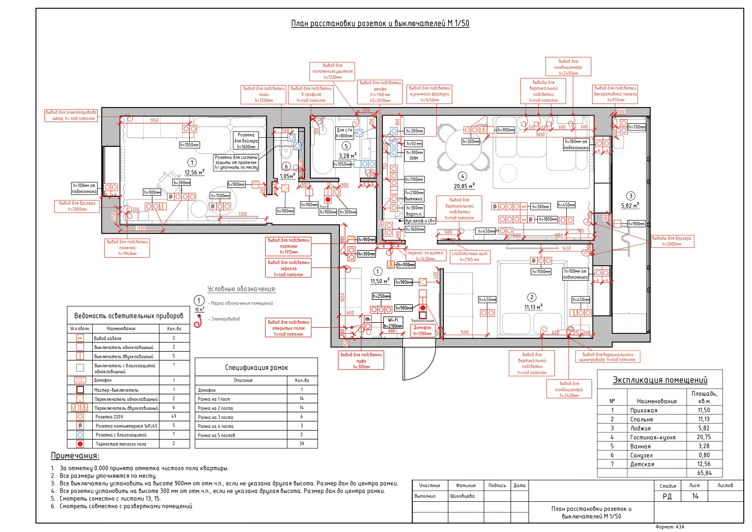
ТРЕХКОМНАТНАЯ КВАРТИРА
ПЛОЩАДЬ - 65,84 м²
ЛОКАЦИЯ - ТОМСК
2025 ГОД
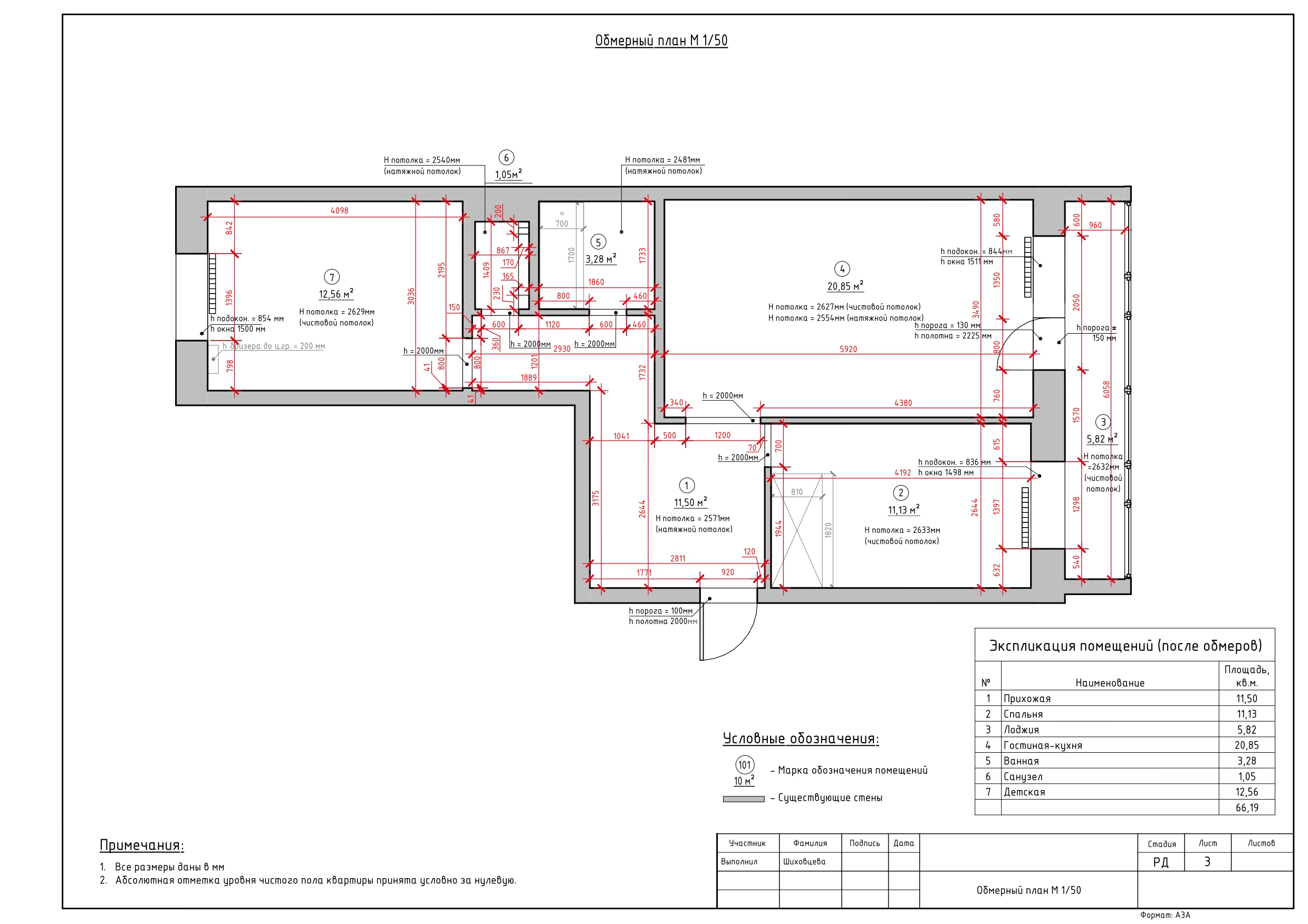
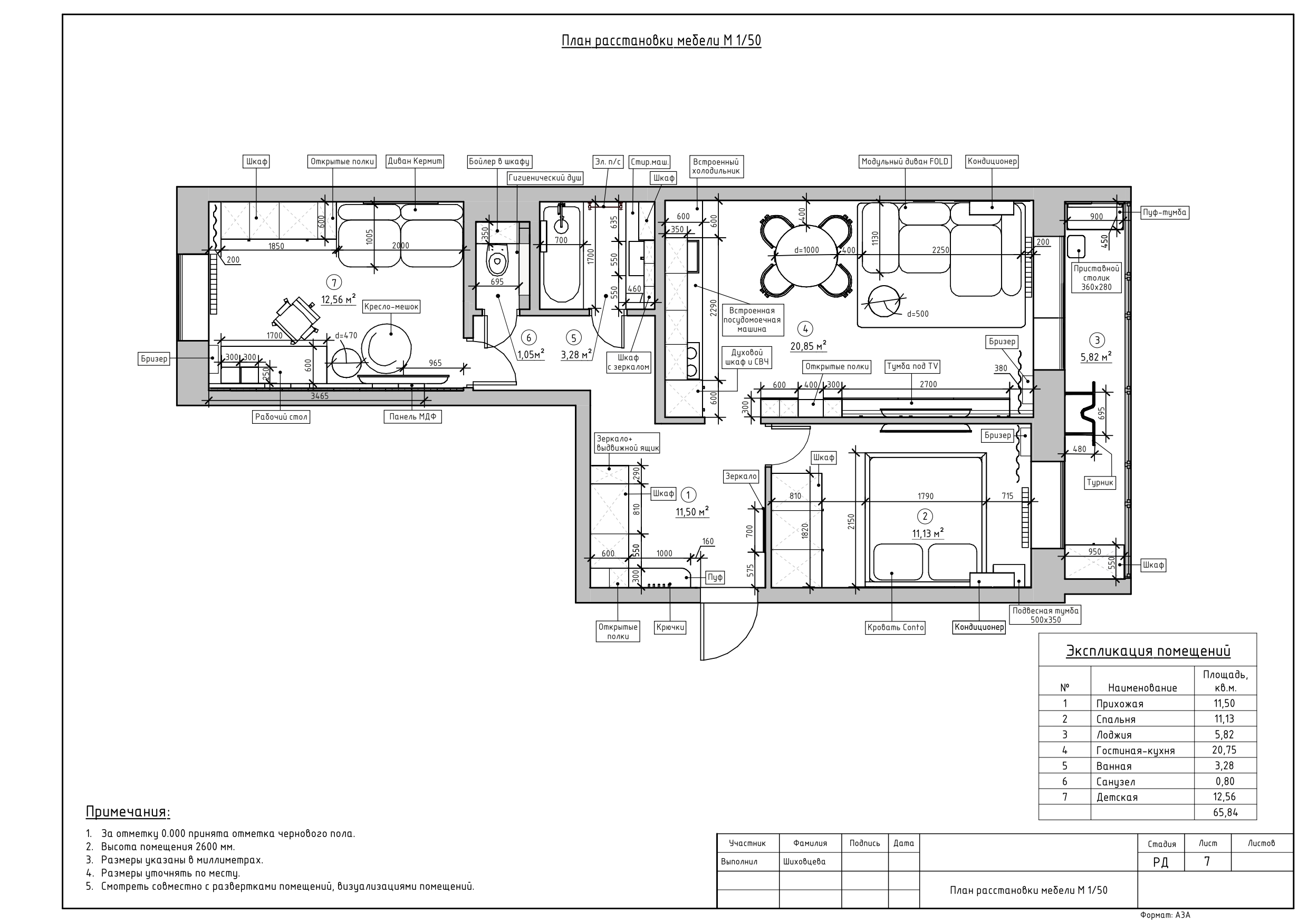
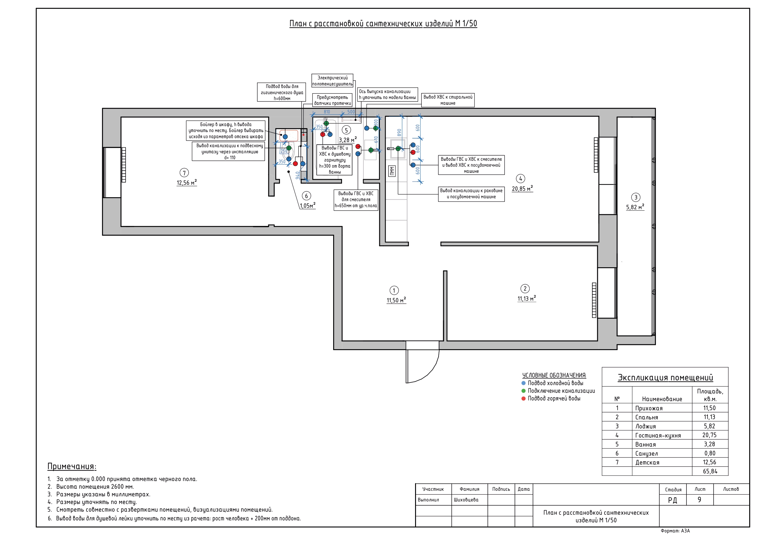
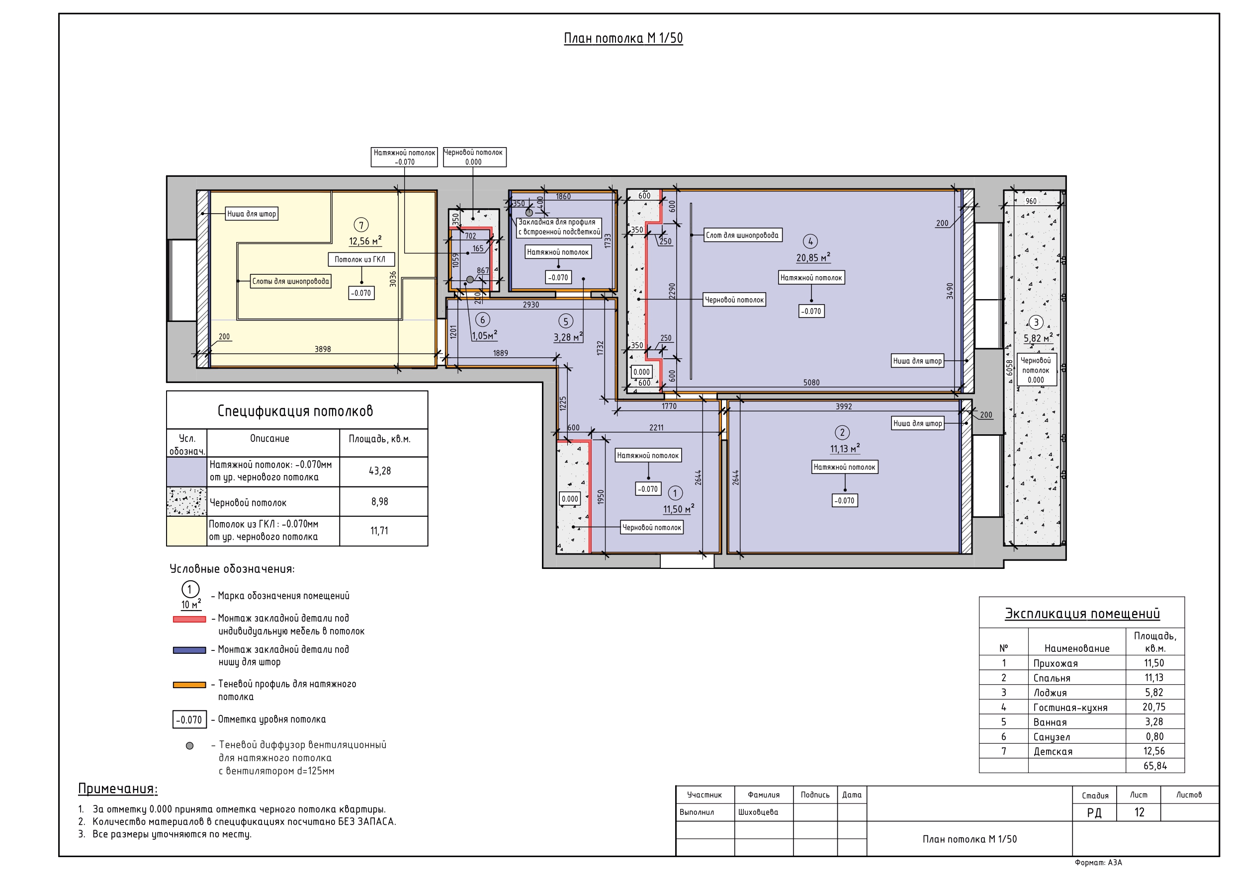
Проект включает в себя подробную рабочую документацию для оформления интерьера трехкомнатной квартиры с акцентом на функциональность, комфорт и стиль. Перепланировок в квартире не предусмотрено, однако акцент сделан на рациональном использовании пространства и создании индивидуальной мебели, которая соответствует потребностям жильцов.















































