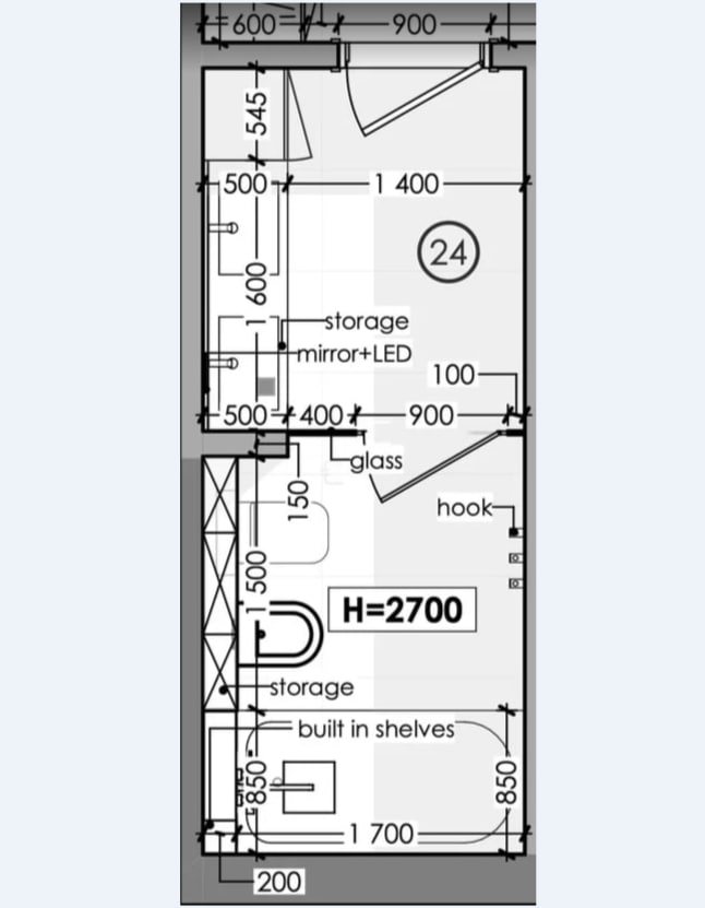
ЗАДАЧА:
Базовая планировка санузла. Высота помещения — 3 метра.
Помещение в "черновом" состоянии: без отделки, мебели и инженерных
элементов.
Выполнить фотореалистичную 3D-визуализацию данного санузла с нескольких ракурсов.
ЗАДАЧА:
Базовая планировка санузла. Высота помещения — 3 метра.
Помещение в "черновом" состоянии: без отделки, мебели и инженерных
элементов.
Выполнить фотореалистичную 3D-визуализацию данного санузла с нескольких ракурсов.

РЕФЕРЕНСЫ

ВИЗУАЛИЗАЦИИ




Современный минимализм с теплой натуральной фактурой.
Задача - визуально комфортное пространство, сделать интерьер практичным в эксплуатации и простым в монтаже.
Фокус - зона умывальников с плиткой "кабанчик" и подсветкой зеркал.
Основная палитра - нейтральные светло-серые тона с теплым подтоном. (пол+стены)
Материал: KERAMA MARAZZI Портленд светло-серый матовый обрезной 600х1195х20 мм
Акцентная поверхность - матовая плитка под дерево темно-коричневого оттенка. (стены)
Материал: KERAMA MARAZZI Surface Laboratory/Кредо коричневый темный обрезной 1195x3200x6 мм
Декоративная поверхность - мелкоформатная плитка "кабанчик" для акцентной зоны.
Материал: KERAMA MARAZZI Мажорель белый глянцевый 60х285х10 мм
Столешница литая с двумя раковинами из искусственного камня, предусмотрена металлическая полка, располагающаяся снизу для хранения.
Пенал из влагостойкого ЛДСП с полимерным покрытием бежевого оттенка.
Многослойная схема освещения: общее (встраиваемые точечные), рабочее (подсветка зеркал) и акцентное (подсветка душевой зоны).
Цветовая температура 3000К и 4000К для комфортной теплой атмосферы, CRI≥ 90 для точной передачи цвета материалов.