ЧАСТЬ 1. АРХИТЕКТУРА


Я была частью большой команды, участвовавшей в разработке Hikari, и я благодарна за опыт, полученный за 9 месяцев работы над проектом. В этом проекте я выступала в качестве дизайнера интерьера и CGi художника, а также участвовала в принятии важных решений по дизайну здания
О ПРОЕКТЕ
Hikari - это не просто очередной строительный проект, Hikari - это место для проживания людей. Здесь была заложена концепция настоящего оазиса, священного места для жизни. Дизайн дома был тщательно продуман до мельчайших деталей, чтобы будущие жители могли наслаждаться жизнью и единением с природой даже в стенах своего дома.
Одна из главных целей Hikari - создать единение с природой. Комфорт создается как снаружи, так и внутри, создавая гармонию.


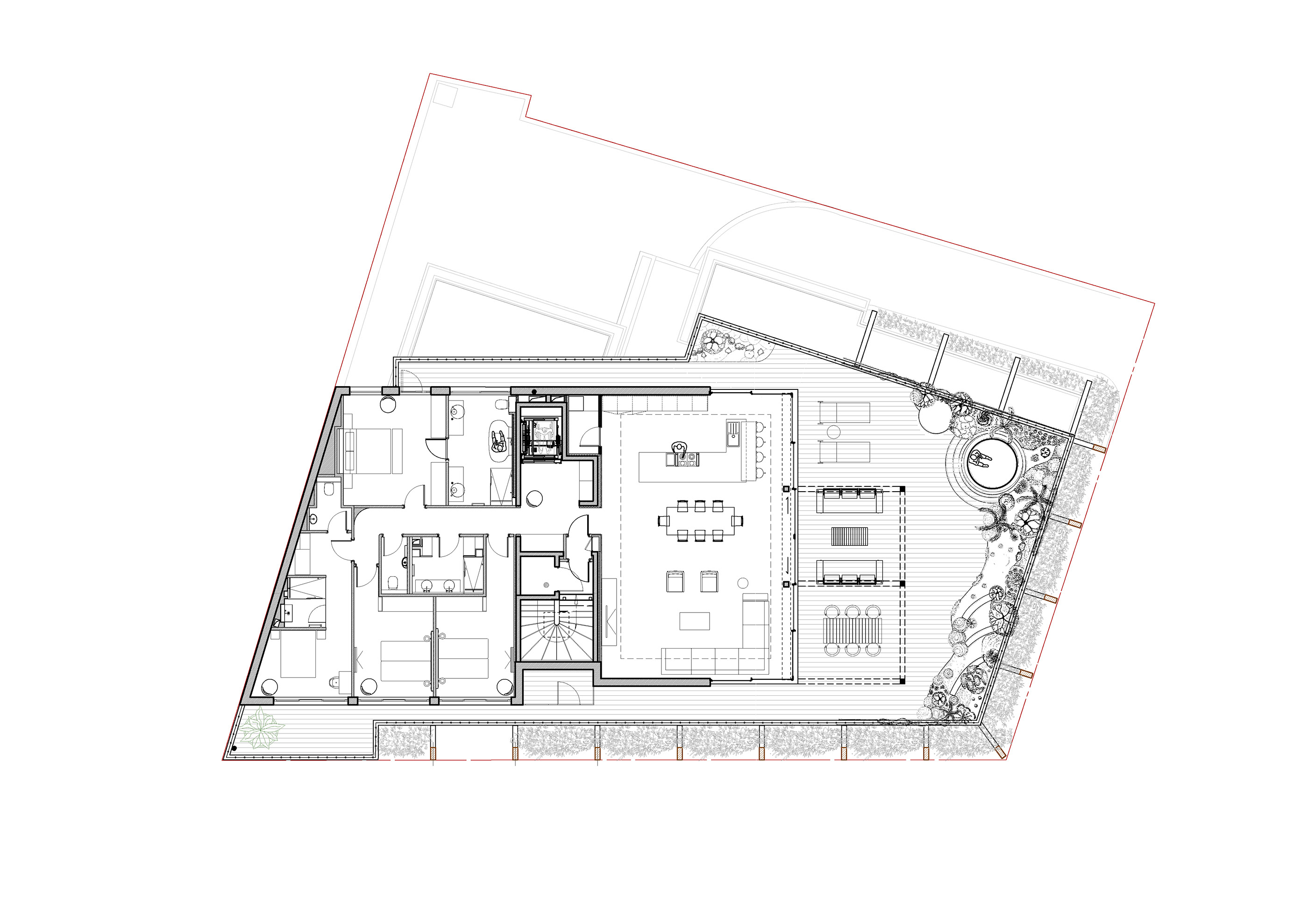
Несмотря на многоэтажное здание, в этом проекте всего 11 квартир. Одна из них - роскошный пентхаус на последнем этаже с частным садом, террасой, джакузи и захватывающим видом на море.
Для Hikari был разработан отдельный проект ландшафтного дизайна ландшафтным архитектором, который включает в себя: японский сад, индивидуальные балконные сады для каждой квартиры, ароматический сад на крыше пентхауса (для выращивания домашних овощей и трав), большой сад на террасе пентхауса.
Кроме того, по периметру здания планируется высадить три вида настоящего бамбука, который создаст уникальную атмосферу и сделает Hikari одним из особенных объектов бионической архитектуры. Все это поможет жителям наслаждаться единением с природой и комфортом как снаружи, так и внутри дома.

Выбирая забор для клиента, мы руководствовались идеей простоты. Мы не хотели перегружать фасад уродливыми и типичными ограждениями, поэтому остановились на простом варианте, который одновременно служит защитой и эстетически привлекателен.
Для всех ограждений Hikari и плантаторов (для балконных растений) мы используем материал кортен. У него потрясающая уникальная текстура, и со временем он становится еще красивее.
SKETCHES


Здание имеет не просто обычную прямоугольную форму. Несмотря на довольно простую геометрию, архитектор придумал форму здания, напоминающую корабль, который, кажется, пытается уплыть в море


Здание имеет 16 колонн по периметру, выполненных из дерева. Колонны крепятся к двутавровой балке в нижней части, создавая эффект парения и ощущение невесомости.
Цоколь здания выполнен из натурального камня, а для сохранения естественного вида были выбраны деревянные планки. В некоторых местах планки прерываются, что помогает добиться ощущения легкости и избежать монотонности.


Чтобы создать качественную визуализацию, я сам смоделировал все пространство (с помощью геометрии). Я постарался воспроизвести все детали с максимально возможной точностью, чтобы отразить объект в реалистичном окружении

На балконах квартир разбиты пышные висячие сады, которые превращают здание в зеленый оазис среди бетонных конструкций города. Кроме того, проект может похвастаться тщательно продуманным разнообразием растений и потрясающими композициями из деревьев, кустарников и цветов. Ландшафтный архитектор тщательно разместил каждое растение на своем месте, гарантируя, что каждый аспект проекта действительно уникален.


Обилие растений в этом проекте стало для меня ключевым аспектом участия. Несмотря на сложную задачу, я влюбился в концепцию и хотел воссоздать то, что еще никто не видел, и показать, как это будет в реальности.
Задача была очень сложной, но посмотрите на результат!

Вместе с клиентом мы несколько раз выбирали цвет для штукатурки. В городе действуют строгие правила для архитектуры (цвет фасадов и отделки крыш - разрешены только определенные цвета черепицы). Главный архитектор города строго следит за соблюдением всех правил, и в нашем случае не было исключения. Использование белого цвета было строго запрещено. После нескольких попыток мы выбрали цвет, который будет довольно сложно оттенить, но он идеально вписывается в окружающую среду.


Пентхаус уникален не только в плане интерьеров, но и в плане организации террасы и наличия собственного сада. Здесь есть собственная большая терраса, джакузи, душ, зона отдыха, шезлонги, обеденная зона. В пентхаусе также есть потрясающая беседка, способная трансформироваться, а также красивый сад с водой и огород для выращивания овощей и трав рядом с кухонной зоной.
Настенные наружные бра также были специально разработаны для пентхауса. Я принимал непосредственное участие в этом процессе

Захватывающие дух японские сады и сады пентхауса на первом и последнем этажах - дом для изобилия растений, деревьев и цветов, которые создают поистине уникальную и безмятежную атмосферу. Каждое растение было продуманно размещено, внося свой вклад в общую красоту и самобытность проекта
Hikari - это не просто здание. Это произведение искусства, демонстрирующее силу продуманного дизайна и внимания к деталям
EVENING VIEWS


LOCATION



Проект Hikari разработан на юге Франции, в городе Каркейранн. Это очень живописная местность с потрясающими пейзажами и настоящим средиземноморским климатом. Небо здесь имеет красивый оттенок, и для клиента было очень важно, чтобы я отразил этот цвет в визуализации





Здание будет построено на месте старого здания мэрии. Форма здания и прилегающая к нему территория имеют необычную форму. Для формы объекта были применены нетрадиционные решения.
Здание будет иметь подземную парковку. Доступ к ней будет осуществляться со второстепенной дороги. Вход на парковку будет представлять собой красивую композицию, окруженную большим количеством растений




В городе предъявляются очень строгие требования к дизайну зданий (однородно окрашенные черепичные крыши и специальные стандарты цвета штукатурки), поэтому Hikari служит вспомогательным элементом в окружающем пространстве, но в то же время он, несомненно, выделяется своей уникальностью - обилием зелени
ГЕНПЛАН

* Старое здание мэрии будет заменено зданием "Hikari"

СНИМКИ С ДРОНА






ПЛАНЫ ЭТАЖЕЙ




DESIGN AND VISUALISATION : SOFIA GANIEVSKAIA
ARCHITECT : DENOTE ARCHITECTURE
LANDSKAPE ARCHITECT : Daniel BIELMANN
Client : SAS MARIKO M Maurice-Louis Riquier

ПРОЕКТ РАЗДЕЛЕН НА НЕСКОЛЬКО ЧАСТЕЙ
СЛЕДУЮЩАЯ ЧАСТЬ II. ЯПОНСКИЙ САД

PART 1. Exterior











