ЧАСТЬ III. ПЕНТХАУС. БОЛЬШОЙ САД. ТЕРАССА




Hikari - поистине удивительный проект, при проектировании которого было учтено огромное количество деталей.
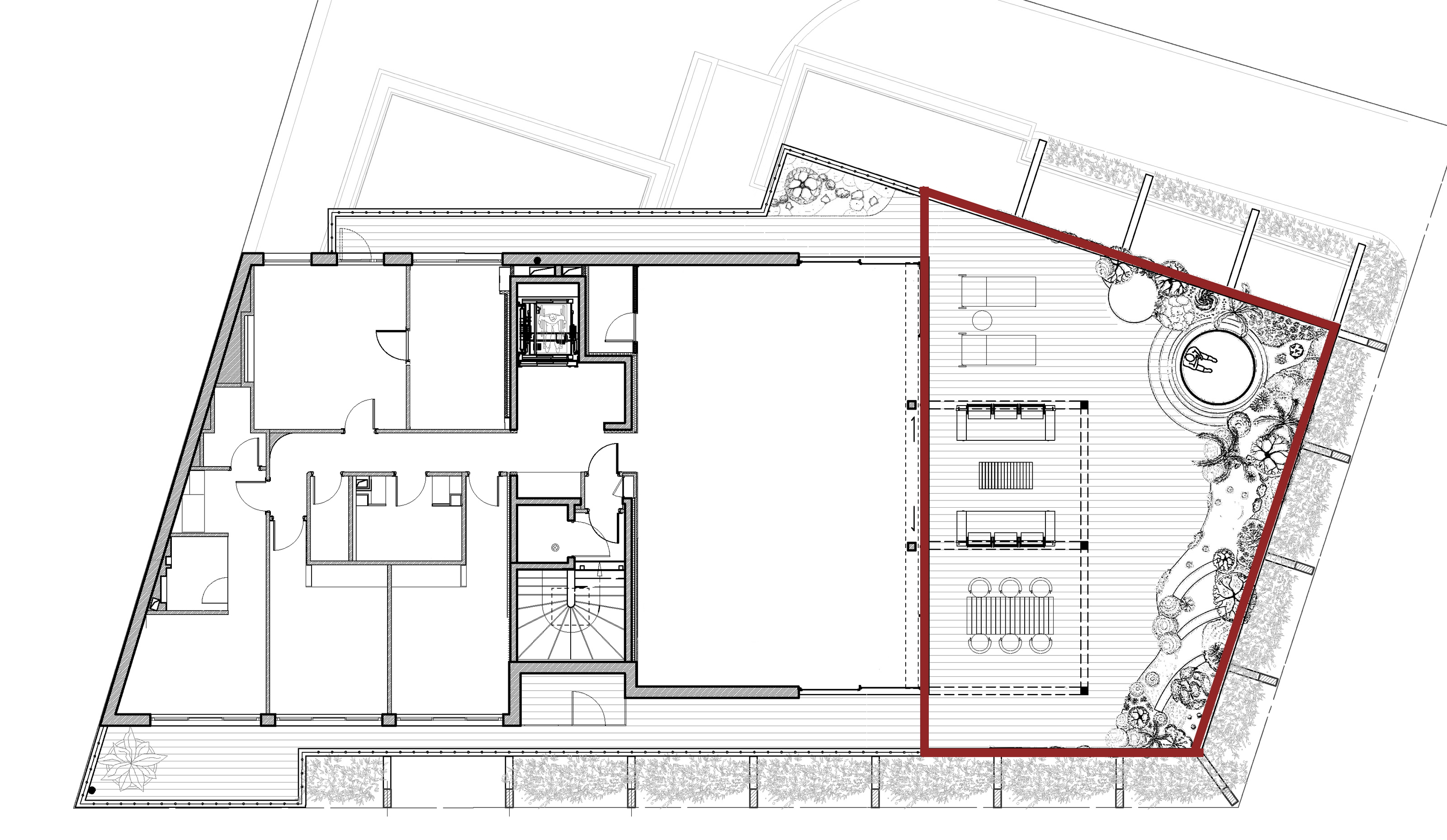
Особого внимания заслуживает сад на последнем этаже здания. Он расположен в пентхаусе. У владельцев пентхауса есть своя терраса, SPA-зона, беседка и даже сад для выращивания трав и овощей (об этом в следующей публикации).







Поверхность напольного покрытия тоже особенная. Здесь используется древесина - Итауба. Эта древесина со временем приобретает красивый серый цвет под воздействием окружающей атмосферы, солнца и дождя. Оно так красиво состарится, что патио со временем станет еще красивее, чем вначале.



В общую композицию сада вписаны SPA и душ, благодаря чему это пространство является еще и функциональным, а не только живописным. Принимая SPA или душ, вы можете любоваться прекрасным видом, который открывается с террасы.

Терраса оснащена специальной беседкой, которая может быть доступна владельцам дома круглый год. Благодаря выдвижным ламелям с электроприводом она адаптируется к любым погодным условиям. Если вы хотите впустить немного света или, наоборот, защититься от солнца, крыша такой беседки быстро позволит найти нужное положение. Она может находиться как в полностью закрытом, так и в частично открытом положении. Такие полотна выдерживают большие нагрузки, поэтому даже снег или град им не помеха. Также полотна можно полностью снять и наслаждаться открытым небом

Сад представляет собой криволинейную композицию с различными видами растений, цветов и трав. Весь сад спроектирован ландшафтным архитектором, и моей задачей было воссоздать все так, как это было в задании. Каждое дерево, кустарник или цветок здесь выполнены с точностью. Это была сложная задача, но результат превзошел все ожидания


SKETCHES



TERRACE

Заказчик также доверил мне выбор уличной мебели для этой террасы.
Меня вдохновила мебель для улицы от известной компании Gloster, и почти все позиции для этой террасы взяты оттуда

DINNING ZONE

Результат настолько удовлетворил заказчика, что он всегда доверял мне все последующие дизайнерские решения, выбор мебели и отделку.








Производитель также предоставляет 3D-модели своих изделий, но не все позиции подходят для использования. Многие модели имеют очень плохую сетку, и мне пришлось моделировать мягкие изделия самостоятельно. Разница показана ниже, и она очевидна.
before



after




EVENING VIEW

Здесь, как и в саду на втором этаже, не обошлось без специального освещения сада в вечернее время. Световую композицию разработал Оливье Солер








FROM INTERIOR


LOCATION
Этот великолепный сад расположен на последнем этаже роскошного пентхауса.

DESIGN AND VISUALISATION : SOFIA GANIEVSKAIA
ARCHITECT : DENOTE ARCHITECTURE
LANDSKAPE ARCHITECT : Daniel BIELMANN
LIGHT ARCHITECT: OLIVER SOLER
Client : SAS MARIKO M Maurice-Louis Riquier

ПРОЕКТ РАЗДЕЛЕН НА НЕСКОЛЬКО ЧАСТЕЙ
СЛЕДУЮЩАЯ ЧАСТЬ IV. ПЕНТАХАУС. САД ТРАВ И СПЕЦИЙ

PART 1. Exterior












