Проектирование и дизайн интерьера магазина текстиля
VS Home в г. Краснодар, ЖК "Седьмой континент"
Задача:
проектирование и дизайн интерьера магазина по продаже премиального текстиля и товаров для дома. В составе работ: выезд и обмер, создание исходной 3D модели и обмерного плана, перепланировка, варианты зонирования помещения, концепция интерьера с подбором мебели, создание 3D эскизов помещений с расстановкой мебели и оборудования, визуализация в SkUp, план с расстановкой мебели с размерами, схема потолков с деталями, разработка мебели по индивидуальному проекту, дизайн витрины, авторский надзор.


Исходное помещение до демонтажа перегородок.



На основе списка товаров для продажи продуман каждый торговый стеллаж.







































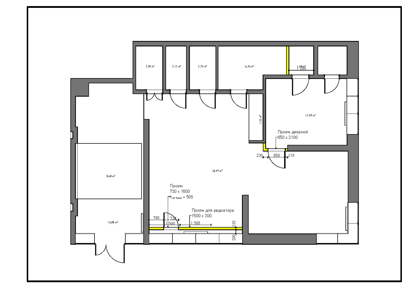
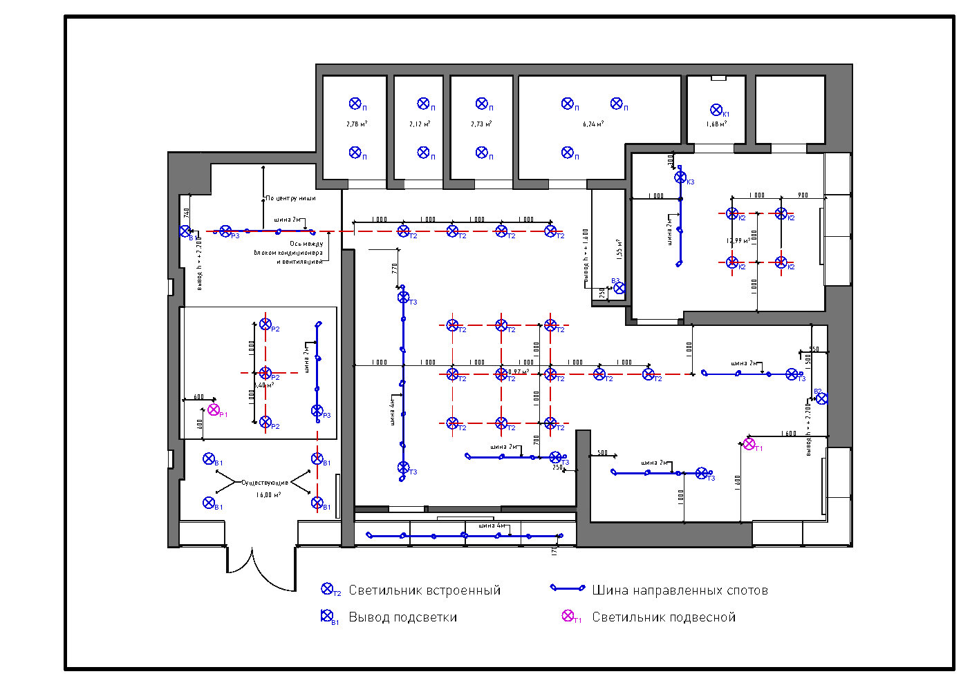
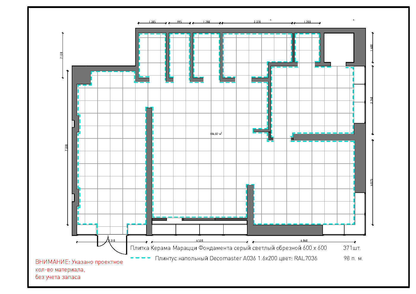
Подготовлены чертежи и спецификации по отделке и светильникам.








Фото реализованного объекта по дизайн-проекту:



















